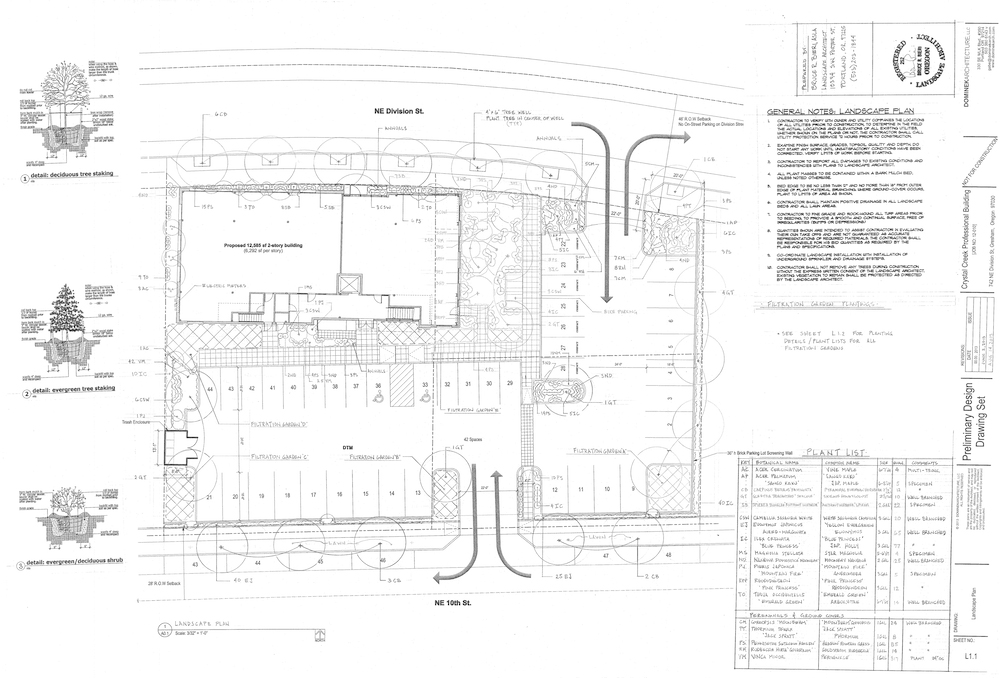
Crystal Creek 2014
Provided landscape planting plans for commercial building site. I worked with architects, engineers and property development companies to prepare landscape plans to comply with local development regulations. Specified plant materials are low maintenance varieties and hardy native species where appropriate.
